Nos solutions pour:
- Base-vie à usage d’habitation
- Logements collectifs
- Bâtiments administratifs
- Maisons individuelles
- Vestiaire , sanitaire…
- Réfectoire, cuisines
Nos bâtiments autoporteurs
Principe constructif
Sarl ModulTech a pour objective de construire maison sure facile à transporter et incroyablement facile à assembler.
A cette fin, nous avons conçu plusieurs modèles adaptes a différents usage et types .le système de construction combine panneaux sandwichs autoportant et profiles métalliques, montes sur dalle en béton arme,
Nous parlons de maisons préfabriquées avec des éléments structuraux
Les panneaux sandwichs sont multifonctionnels .ils ont non seulement la fonction constructive en tant qu’éléments portant mais ils contribuent à l’isolation thermique ainsi qu’à l’étanchéité à l’eau et à l’air. Ils augmentent considérablement le confort du bâtiment, grâce à leurs propriétés acoustiques et leur capacité thermique .
Ce système de construction permet de proposer une grande diversité de bâtiments , vous trouverez joint à cette présentation des exemples de plans des différents bâtiments possible .
Dépourvue de structure et pourtant si robuste :
Les bâtiments autoporteurs sont dépourvus de charpente, de ce fait, le montage s’en retrouve facilité. Le temps de pose est optimisé, si bien que les coûts sont allégés. De plus, nos bâtiments sont isolés et sans entretien !Les panneaux sandwichs remplissent simultanément les fonctions de couverture structurelle et d’isolation thermique .ils associent deux parements d’acier revêtu, d’une âme en mousse de polyuréthane rigide
Principe de l’autoporté :
La stabilité est assurée par la forme (sans support), dictionnaire Le Robert
Le principe que nous avons adopté, est bien connu des physiciens. La forme, et, le raccord d’éléments les uns aux autres peuvent ainsi créer une robustesse structurelle. (Principe d’assemblage carton, par exemple)
Nos panneaux sont autoporteurs sur 6 m de haut et plus. Assemblés les uns aux autres, ce phénomène physique s’amplifie, et la tenue du bâtiment n’est plus à démontrer. Par ce fait, nos réalisations sont aussi solides que les constructions traditionnelles.
Efficacité et coût :
Les logements préfabriqués de Sarl ModulTech sont également plus efficaces que les constructions traditionnelles sur le plan énergétique. La conception apportant une isolation optimale et l’utilisation de matériaux de qualité élevée permettent de fournir des solutions durables qui optimisent les coûts de chauffage et d’air conditionné.
Il convient de signaler que le coût moyen par mètre carré de nos constructions est très compétitif par rapport à celui d’une construction traditionnelle. La fabrication modulaire industrialisée et nos contrôles de qualité stricts en atelier réduisent les coûts liés au travail et permettent d’optimiser les délais de production et d’éliminer les erreurs éventuelles.
Les Matériaux de base de nos bâtiments autoporteurs
PANNEAUX SANDWICHES STRUCTURAUX:
Fournisseur et producteur : Sarl hodna métal
Définition/normes:
Identification de l’acier : Nuance S250,S280,S320
profil à nervuration de faible profondeur ou lisse
Epaisseur : 0,5mm-0,6mm-0,7mm-0,75mm.
Ame isolante : mousse polyuréthane rigide sans
CFC (avec N-pentane)
Injectée en continu entre deux parements métalliques.
-Masse volumique : 40 kg/m³ ± 3kg
-conductivité thermique : 0.022 W/m.˚C
Étanchéité des rives: les panneaux sandwichs bardages présentent une rive male et une rive femelle permettant un assemblage par emboitement .la nervure male est femelle sont fermées par une bande adhesive.tout les panneaux bardages sont munis sur la nervure femelle d’un joint d’étanchéité à l’air; leurs parements pré laqués sont protégés par film adhésif à retirer à la pose.
Tolérance sur panneau
-épaisseur ±3mm -largeur ±3mm
-Longueur ±5mm -équerrage±5mm
REVETEMENT:
Parement externe :-Galvanisé ou galvanisé pré laqué polyester (suivant nuancier producteur)
Parement interne :-Galvanisé ou galvanisé prélaqué polyester (suivant nuancier producteur)
Classement de réaction au feu : M2
PANNEAUX SANDWICHES DE COUVERTURE
Fournisseur et producteur : Sarl hodna métal
Définition/normes:
Parement externe :
profil type 4.40.1000T
épaisseur : 0,5mm-0,6mm-0,7mm-0,75mm.
Parement interne :
profil à nervuration de faible profondeur
Epaisseur : 0,5mm-0,6mm-0,7mm-0,75mm.
Ame isolante : mousse polyuréthane rigide sans
CFC (avec N-pentane)
Injectée en continu entre deux parements métalliques.
-Masse volumique : 40 kg/m³ ± 3kg
-conductivité thermique : 0.022 W/m.˚C
Étanchéité des rives: le panneau sandwich de couverture présente une nervure male (mousse) et une nervure femelle (sans mousse) permettant un assemblage par emboitement .la nervure male male est fermée
Par bande adhésive, et la nervure femelle d ‘un joint d ‘étanchéité à l’air
Tolérance sur panneau
-épaisseur ±3mm -largeur ±3mm
-Longueur ±5mm -equerrage±5mm
Classement de réaction au feu : M2
PROFILÉS MÉTALLIQUES :
Profilés en acier galvanisés, avec d’épaisseurs et formes qui varient en fonction des besoins de charges
Fondations et dalles :
D’une manière générale, du à la légèreté de nos bâtiments il n’y a pas de prescriptions particulières quant aux fondations de nos ouvrages. Tous nos bâtiments son posé et encré sur une simple dalle en béton de 15cm d’épaisseur minimum avec un dosage de 350kg/m³ comportant une seule nappe de treillis soudé maille 15cmx15cm.
SYSTEMES D’ASSEMBLAGE ET DE FIXATION :
éléments d’encrage:
cheville béton de sécurité M12-80
tige filetée M12 .de 2.5m à 5m de long .
Éléments d’assemblage :
rivets de structure , rivet aveugle
THT8 vis auto perceuse acier zingue norme DIN 7504 Æ 8/4.8 pour la structure générale
THR8 vis auto perceuse acier zingué DIN 7504 Æ8/4.8 avec rondelle étanche EPDM pour les panneaux
couvertures
Un Mécano constructif
Le système de construction combine des panneaux sandwichs autoportant et des profilés métalliques ancrés sur dalle béton armé.
Les panneaux sont livrés pré-usiné et prêtes à assembler sur Site
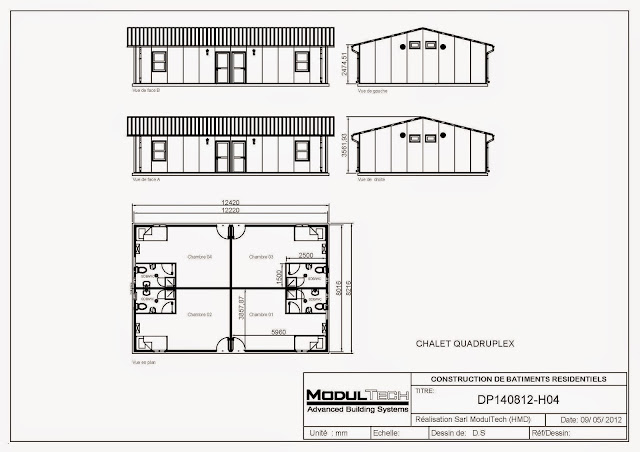
Chalet sur mesure : exemples de plans
Pour vous donner une idée des possibilités de construction d’un chalet nous vous proposons quelques schémas exemples joint à cette présentation, ainsi de quelque images de même type de bâtiments de différents constructeurs dans le monde. Ainsi que la présentation du
Chalet témoin .
![]() |
![]() |
![]() |
![]() |
![]() |
![]() |
![]() |
![]() |
![]() |
![]() |
![]() |
![]() |
![]() |
![]() |
![]() |
![]() |
![]() |
![]() |
| Galerie images villa témoin sarl modultech HMD | |
![]() |
|
| Présentation en version PDF | Galerie images Villa d'un particulier HMD |
DIAPORAMA PROMO |
![]() |























